Core design
our offer
For those who want to see the full potential of a space before making any investment.
This step eliminates uncertainty and reveals what the space can become.
If you are at the beginning and want to make a confident decision, contact us and we will create a concept that uncovers the functional possibilities of your space.
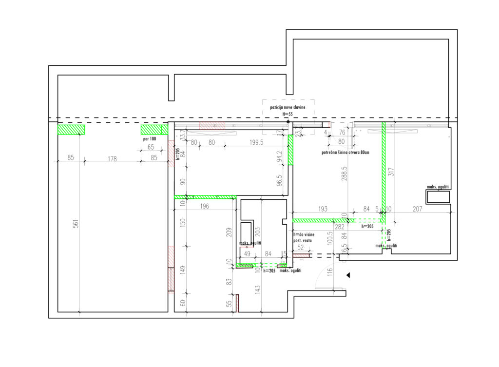
This service is also ideal for clients who need a clear organizational layout with additional technical development, without renderings, including measured plans and all elements required for execution.
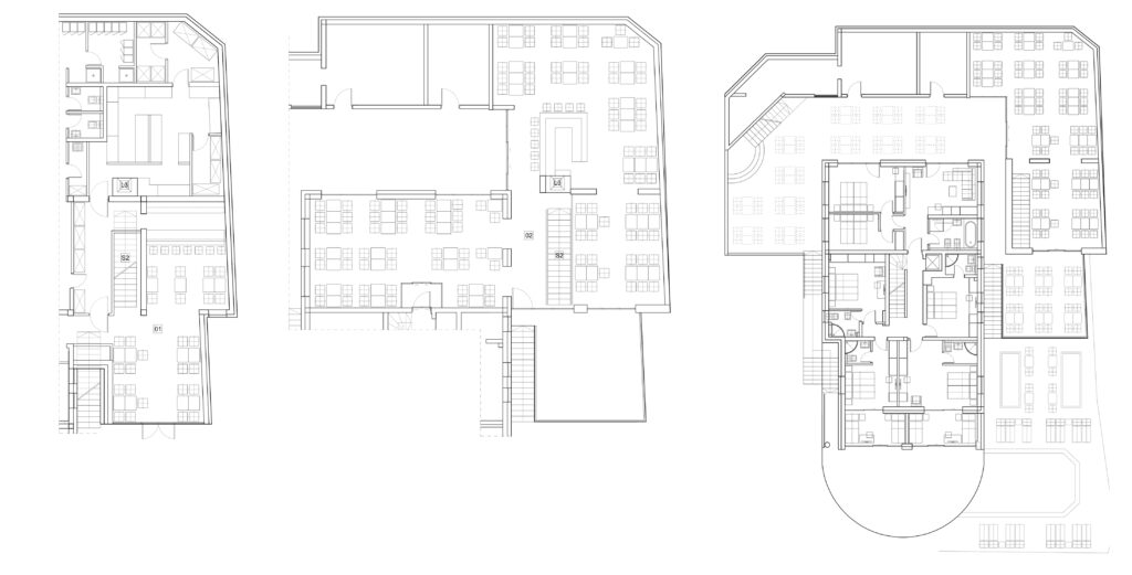
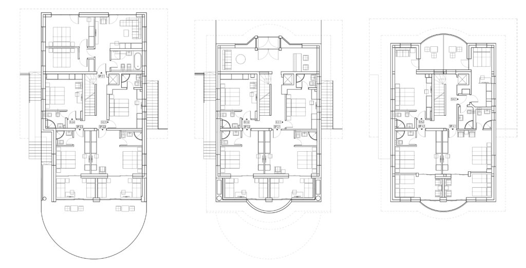
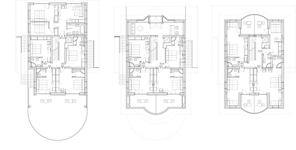
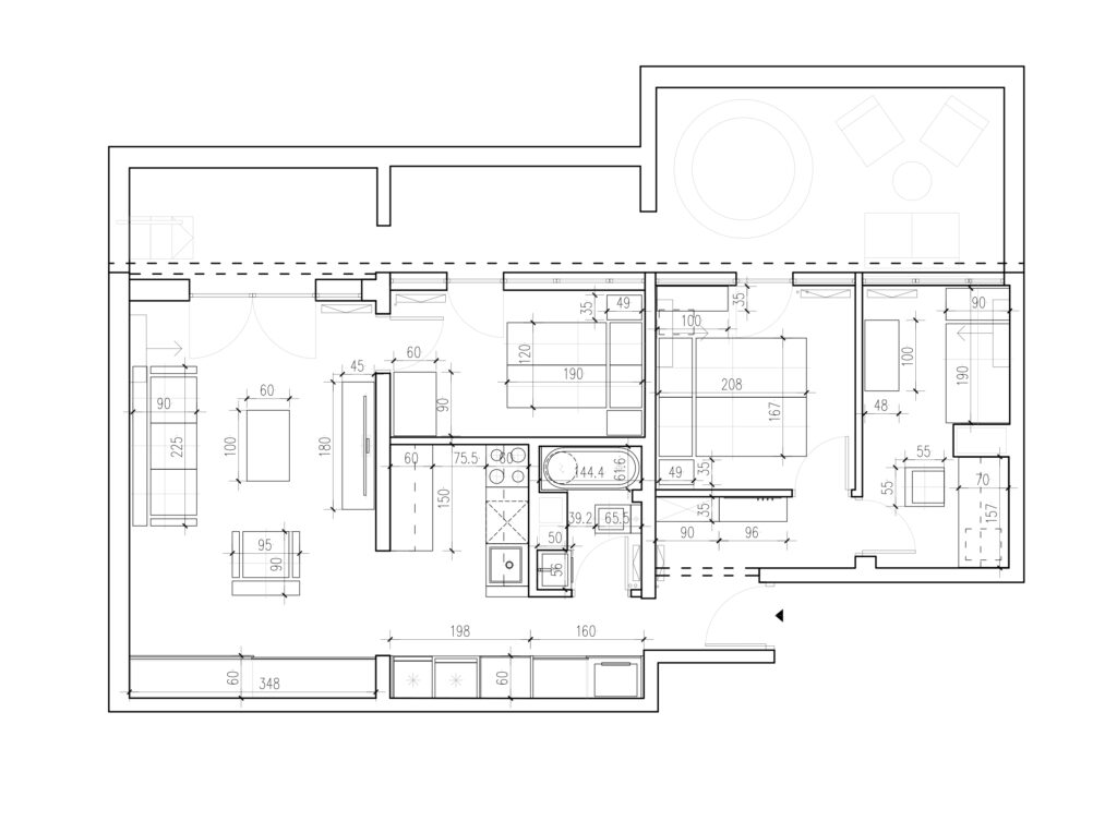
A professional 2D layout with multiple layout options, clearly defined zones, organisation of space and the placement of walls, openings, and furniture.
The offer includes spatial analysis and potential assessment, professional 2D layout options, clearly defined zones, and an organized plan of walls, openings, and furniture, providing a clear foundation and recommendation for further investment.
Thinking upfront decreases risks



what's included
Professional spatial analysis and potential assessment, professional 2D layout options, clearly defined zones, and an organized plan of walls, openings, and furniture, providing a clear foundation and recommendation for further investment.
If you have any requirements you would like to add that are not listed in the offer description, please contact us.
clear
precise
client focused
why work with us
We believe in thoughtful design, clear communication, and responsibility at every stage of the design process. We respect the project goals and agreed timelines.
Through careful analysis and informed design decisions, we create functional, coherent solutions that protect the concept, usability, and long-term value of the space.
For any question or more information contact us







